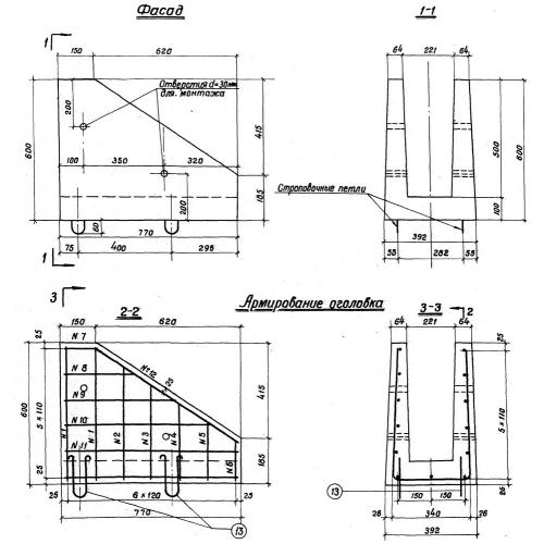
Оголовок тип I
Характеристики изделия:
| Параметр | Значение |
|---|---|
| длина | 770 мм |
| ширина | 392 мм |
| высота | 600 мм |
| масса | 180 кг |
| нормативный документ | Альбом № 984 |
Цена:
Рассчитать стоимостьОголовок междушпального лотка ТИП 1 изготавливается согласно "Альбом водоотводных устройств на станциях" инв.№ 984
ОПИСАНИЕ И ОБЛАСТЬ ПРИМЕНЕНИЯ
Оголовки лотков МШЛ 0.5 тип I изготавливаются прямоугольного сечения шириной 392 мм.. и имеют усеченный вид. Блоки оголовков лотков производят длиной 0,6 м. Вес блока оголовка лотка МШЛ 0,5 составляет 0,180 т. Блоки оголовков лотков изготавливаются из плотного гидротехнического бетона марки М300. В стенках лотков предусмотрены дренажные отверстия диаметром 3 см.
Монтируются оголовки лотков на концевых участках сборных конструкций лотков междушпальных МШЛ 0.5 для отвода воды от централизованных стрелок и вдоль бортов пассажирских платформ.
