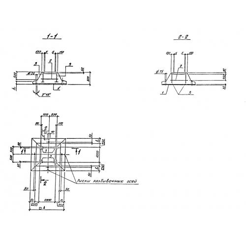
Ф1

Чертеж изделия:
Характеристики изделия:
ПараметрЗначение
длина2100 мм
ширина2100 мм
высота800 мм
вес4900 кг
серия0-221-84

Ф1 Плиты фундаментные по серии 0-221-84.