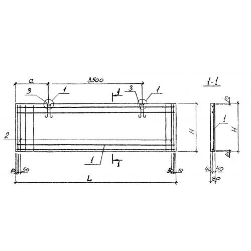
ПГ 58.12 панели перегородки

Чертеж изделия:
Характеристики изделия:
ПараметрЗначение
длина5760 мм
ширина80 мм
высота1185 мм
масса690 кг
нормативный документСерия 1.030.9-2

ПГ 58.12   Перегородки панельные зданий промышленных и сельскохозяйстыенных предприятий Серия 1.030.9-2.