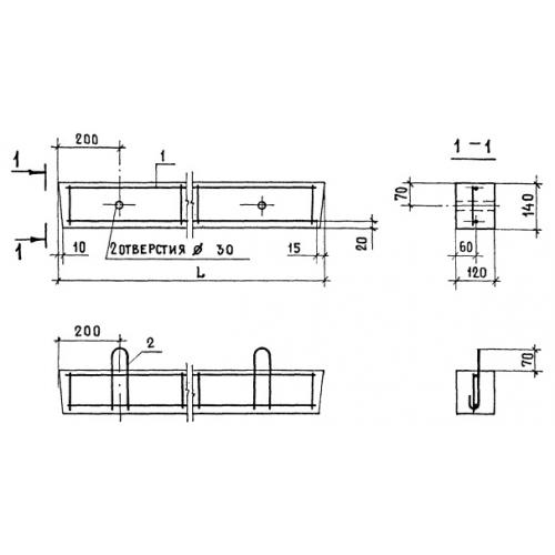
2ПБ 26 перемычки брусковые

Чертеж изделия:
Характеристики изделия:
ПараметрЗначение
длина2590 мм
ширина120 мм
высота140 мм
масса109 кг
нормативный документСерия 1.038.1-1

2ПБ 26  Перемычки брусковые Серия 1.038.1-1.