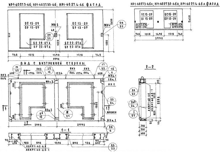
НР1-60.27.35-6б

Чертеж изделия:
Характеристики изделия:
ПараметрЗначение
Длина5990 мм
Ширина350 мм
Высота2650 мм
Масса5170 кг
Нормативный документСерия 1.132-1

НР1-60.27.35-6б   Наружная стеновая панель рядовая по Серии 1.132-1.