ВБН 12.33.6

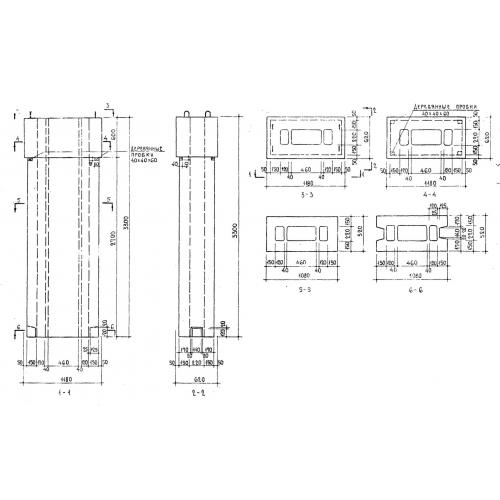
Чертеж изделия:
Характеристики изделия:
ПараметрЗначение
длина1180 мм
ширина620 мм
высота3300 мм
вес1895 кг
серия1.134-3

ВБН 12.33.6 Наружные вентиляционные блоки по серии 1.134-3.