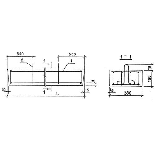
2ПР 18

Чертеж изделия:
Характеристики изделия:
ПараметрЗначение
длина1810 мм
ширина380 мм
высота190 мм
вес327 кг
серия1.138-10

2ПР 18 Перемычки плитные по серии 1.138-10.