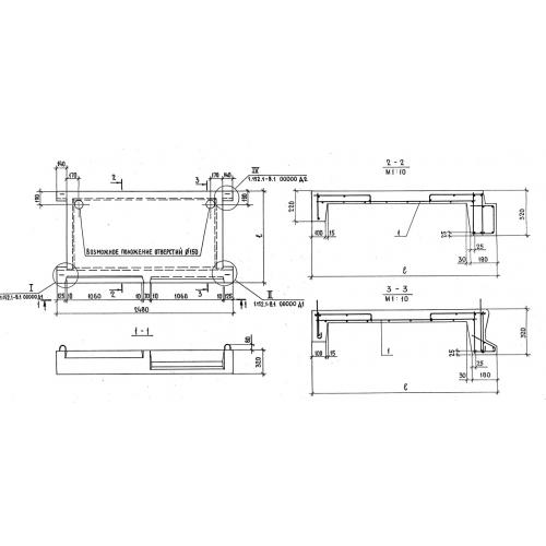
2ЛП 22.19

Чертеж изделия:
Характеристики изделия:
ПараметрЗначение
длина2200 мм
ширина1900 мм
высота320 мм
масса1080 кг
нормативный документСерия 1.152.1-8

2ЛП 22.19  Лестничные площадки ребристые  Серия 1.152.1-8.