ШЛС 30-32

Чертеж изделия:
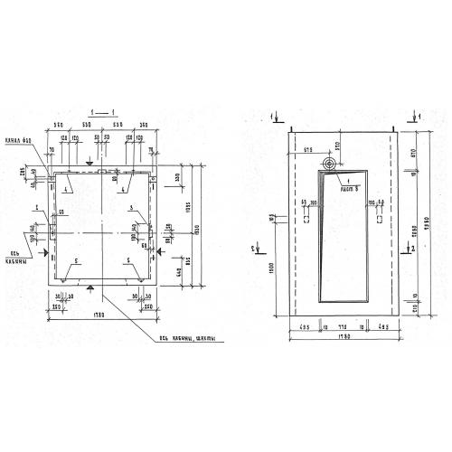
Характеристики изделия:
ПараметрЗначение
длина1780 мм
ширина1930 мм
высота2980 мм
вес4980 кг
серия1.189.1-8

ШЛС 30-32 Блоки лифтовой шахты средние по серии 1.189.1-8.