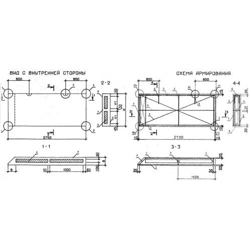
ПСТ 27.5.15.3.0 панели стеновые
Характеристики изделия:
| Параметр | Значение |
|---|---|
| длина | 2750 мм |
| ширина | 300 мм |
| высота | 1485 мм |
| масса | 1580 кг |
| нормативный документ | Серия 1.232.1-7 |
Цена:
Рассчитать стоимостьПСТ 27.5.15.3.0 Панели стеновые трехслойные (панель рядовая для внутренних углов зданий) Серия 1.232.1-7.
