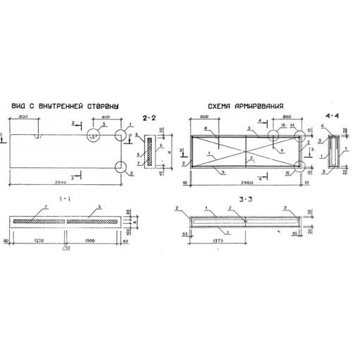
ПСТ 30.12.3.5 панели стеновые

Чертеж изделия:
Характеристики изделия:
ПараметрЗначение
длина2980 мм
ширина350 мм
высота1185 мм
масса1450 кг
нормативный документСерия 1.232.1-7

ПСТ 30.12.3.5  Панели стеновые трехслойные (рядовые)  Серия 1.232.1-7.