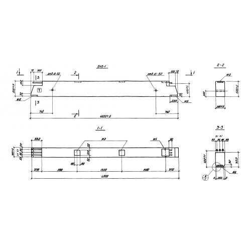
Б 45 ригели торцевые
Характеристики изделия:
| Параметр | Значение |
|---|---|
| длина | 4920 мм |
| ширина | 300 мм |
| высота | 500 мм |
| масса | 1780 кг |
| нормативный документ | Серия 1.420-12 |
Цена:
Рассчитать стоимостьБ 45 Ригели с полками для опирания плит (однополочный ригель) Серия 1.420-12.
