Тв 3
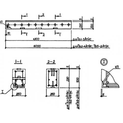
Характеристики изделия:
| Параметр | Значение |
|---|---|
| длина | 6000 мм |
| ширина | 250 мм |
| высота | 500 мм |
| масса | 1900 кг |
| нормативный документ | Серия 3.015-3/92 |
Цена:
Рассчитать стоимостьТв 3 Траверсы Серия 3.015-3/92.
| Параметр | Значение |
|---|---|
| длина | 6000 мм |
| ширина | 250 мм |
| высота | 500 мм |
| масса | 1900 кг |
| нормативный документ | Серия 3.015-3/92 |
Тв 3 Траверсы Серия 3.015-3/92.
