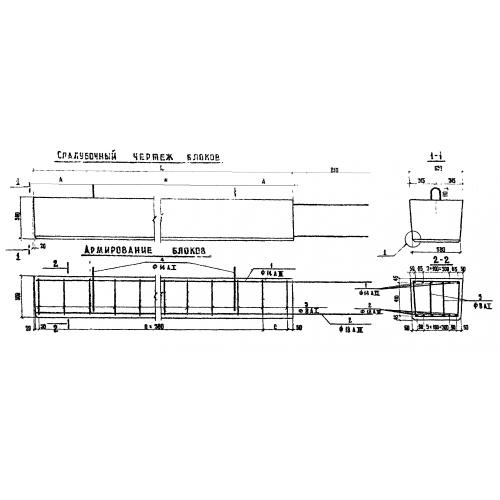
Л-4
Характеристики изделия:
| Параметр | Значение |
|---|---|
| длина | 6700 мм |
| ширина | 630 мм |
| высота | 610 мм |
| вес | 4300 кг |
| серия | 3.503-41 |
Цена:
Рассчитать стоимостьЛ-4 Лежни железобетонные по серии 3.503-41.
| Параметр | Значение |
|---|---|
| длина | 6700 мм |
| ширина | 630 мм |
| высота | 610 мм |
| вес | 4300 кг |
| серия | 3.503-41 |
Л-4 Лежни железобетонные по серии 3.503-41.
