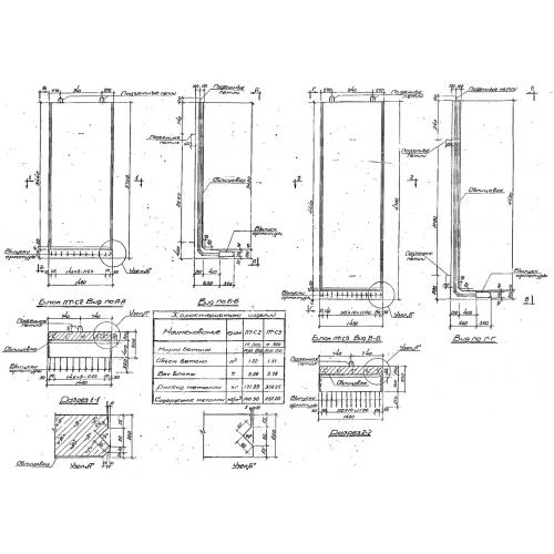
ПТ-С3
Характеристики изделия:
| Параметр | Значение |
|---|---|
| длина | 1480 мм |
| ширина | 950 мм |
| высота | 4700 мм |
| масса | 3780 мм |
| нормативный документ | Серия 3.507-1 |
Цена:
Рассчитать стоимостьПТ-С3 Стеновой блок подземных тоннелей по Серии 3.507-1.
| Параметр | Значение |
|---|---|
| длина | 1480 мм |
| ширина | 950 мм |
| высота | 4700 мм |
| масса | 3780 мм |
| нормативный документ | Серия 3.507-1 |
ПТ-С3 Стеновой блок подземных тоннелей по Серии 3.507-1.
