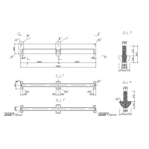
Р 1 ригель

Чертеж изделия:
Характеристики изделия:
ПараметрЗначение
длина5980 мм
ширина550 мм
высота800 мм
масса2275 кг
нормативный документСерия 7075-М

Р 1 Ригели по Серии 7075-М.