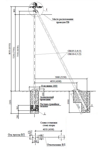
ПОА 32

Чертеж изделия:
Характеристики изделия:
ПараметрЗначение
длина10200 мм
ширина205 мм
высота280 мм
масса1175 кг
нормативный документШифр 26.0085

ПОА 32   Переходные ответвительные анкерные двухцепные опоры  Шифр 26.0085.