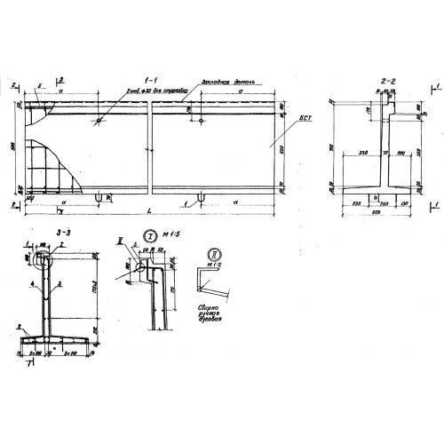
БСТ-30
Характеристики изделия:
| Параметр | Значение |
|---|---|
| длина | 2980 мм |
| ширина | 600 мм |
| высота | 800 мм |
| вес | 654 кг |
| серия | ТП 501-07-5.84 |
Цена:
Рассчитать стоимостьБСТ-30 Стенки бортовые по проекту ТП 501-07-5.84.
| Параметр | Значение |
|---|---|
| длина | 2980 мм |
| ширина | 600 мм |
| высота | 800 мм |
| вес | 654 кг |
| серия | ТП 501-07-5.84 |
БСТ-30 Стенки бортовые по проекту ТП 501-07-5.84.
