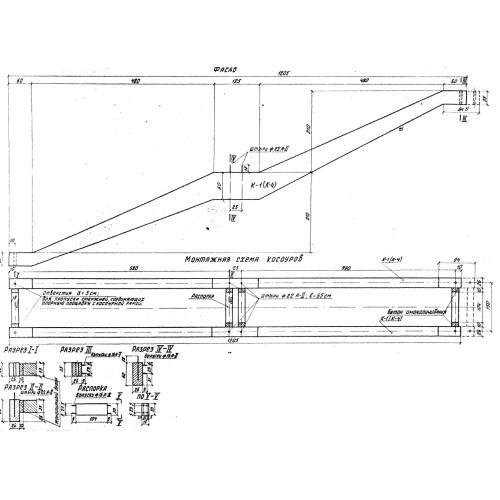
К 1

Чертеж изделия:
Характеристики изделия:
ПараметрЗначение
длина12050 мм
ширина260 мм
высота4200 мм
масса3800 кг
нормативный документТП 501-166

К 1  Косоуры по Типовому проекту ТП 501-166.